Floorplans to suit every taste

Finding the right floorplan is all about choosing a home that feels right for you. At Hampton Court Estate, the apartments are thoughtfully designed to suit your lifestyle, with spaces that are comfortable, easy to live in, and ready to make your own.
Download floorplans
Typical one-bedroom
  1 Bed
  1 Bath
  543-569 Sq Ft
A homely, one-bedroom retreat with a spacious living area designed for easy movement and everyday comfort.
Typical one-bedroom
  1 Bed
  1 Bath
  583 Sq Ft
A bright, one-bedroom apartment designed for easy movement and everyday independence.
Typical two-bedroom
  2 Bed
  1 Bath
  849 Sq Ft
A bright, two-bedroom apartment with a balcony designed for welcoming guests and everyday comfort.
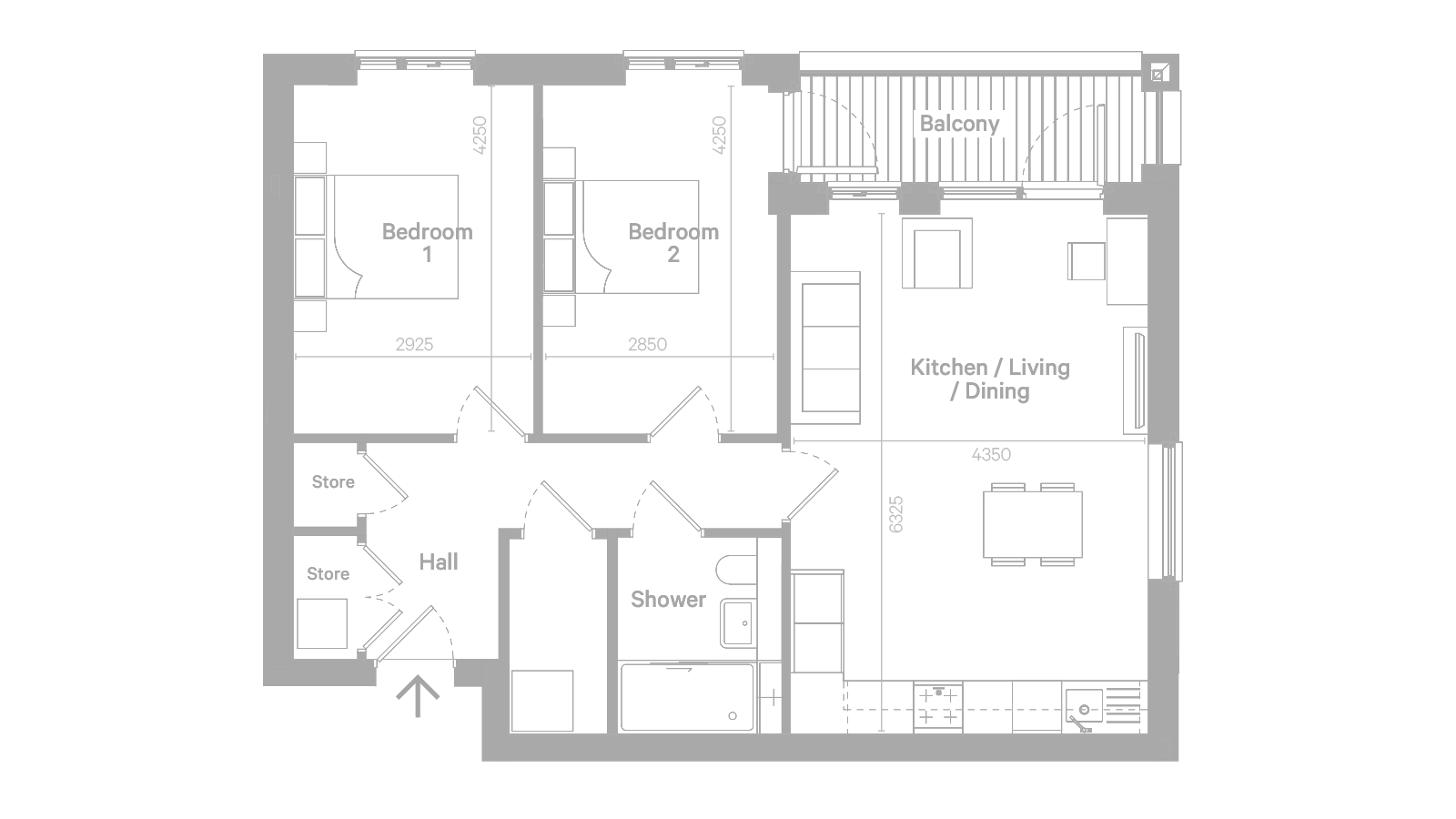
Typical two-bedroom
  2 Bed
  1 Bath
  779 Sq Ft
A spacious, two-bedroom apartment with a balcony designed for welcoming guests and everyday comfort.
Typical two-bedroom
  2 Bed
  1 Bath
  777 Sq Ft
A welcoming, two-bedroom apartment with an open living area and balcony designed for independence and comfort.
Typical three-bedroom
  3 Bed
  1.5 Bath
  1,092 Sq Ft
A homely, three-bedroom apartment with a balcony designed for welcoming guests and everyday comfort.

Ready to make yourself at home?

Most people reach this point while they’re still weighing things up, deciding whether to stay at home or consider a move. Our advisors will take the time to listen, understand what matters most to you, and suggest a few thoughtful next steps, whether that’s a visit now or simply a conversation.

Make an enquiry to speak to one of our advisors